Wildblood Macdonald design North Leeds Masterplan
Posted 19th October 2016
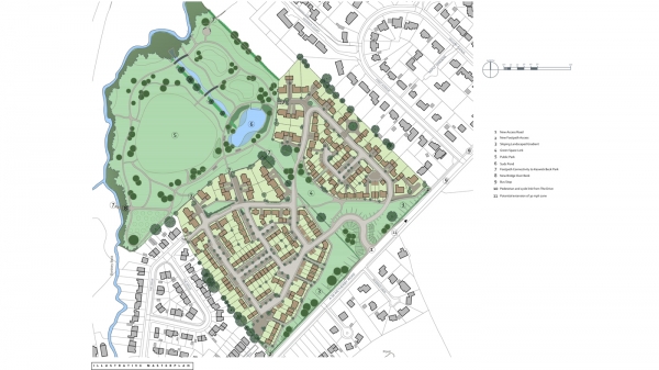
Wildblood Macdonald is pleased to be working with the Bramham Estate, Savills and Sandby Ltd to create a new development of 140 homes in Bardsey Cum Rigton near Wetherby, West Yorkshire.

The site lies within greenbelt land and seeks to apply 'very special circumstances' for the development principle, to allow proceeds for the development to fund much needed repair and restoration for the heritage assets on the Bramham Estate. 23% of all the Grade I listed buildings in the Leeds District are located at Bramham Park.
The design seeks to promote positive 'place marking', with properties fronting onto open green corridors and mature trees. The proposals also include for over 7 hectares of new public park open space and improved connectivity to village amenities. The development will provide a variety of housing types, including provision of much needed smaller homes.

To find out more about the scheme visit the Bardsey New Homes website here: bardseynewhomes.co.uk
Share