S and J Render 2 1400 x 787

Construction work progresses well on site with Triton Construction

Significant expansion for electrical distributor's Leeds headquarters building gets underway.

05th September 2017


WebView2

Start of the year brings a new start on site

Planning permission has been approved for a large detached property on the outskirts of York, North Yorkshire.

26th January 2017


Sketch View

Planning Approval for Contemporary Harrogate Extension

Planning permission has been granted for a contemporary extension to a 1930's detached property just off the popular Stray area of Harrogate, North Yorkshire.

25th January 2017


3965 AERIAL RED LINE HIGH RES AmmendedREDLINE

Wildblood Macdonald design prestigious village masterplan

Wildblood Macdonald design masterplan for Flaxby Park site near Harrogate, North Yorkshire.

05th January 2017


Masterplan 1400x787

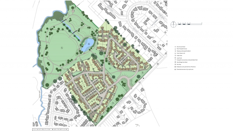
Wildblood Macdonald design North Leeds Masterplan

Wildblood Macdonald design masterplan for 140 new homes in Bardsey Cum Rigton near Wetherby, West Yorkshire.

19th October 2016