Bardsey Cum Rigton

Bardsey Cum Rigton, West Yorkshire

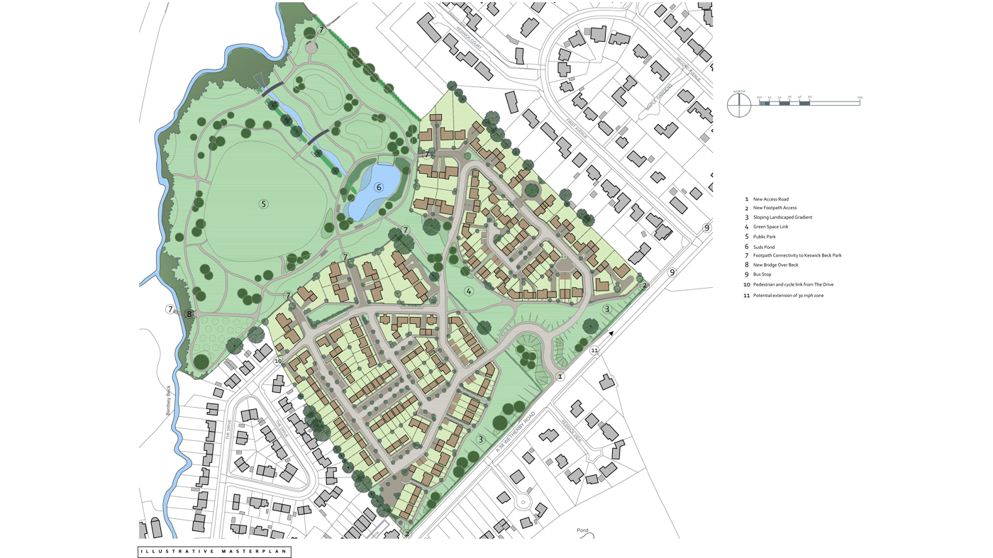
Wildblood Macdonald has prepared the designs for 140 new homes in the village of Bardsey Cum Rigton, near Wetherby, West Yorkshire.

The scheme is part of the Bramham Estate and working alongside Savills and Sandby Ltd will create a new development in the picturesque village for 140 new homes within greenbelt land. The site is part of a wider scheme to apply 'very special circumstances' for the development, with proceeds being used to fund much needed repairs and restoration of heritage assets on the Bramham Estate. The Bramham Estate itself contains 23% of all Grade I listed buildings in the whole of the Leeds District, reiterating the importance of raising funds to maintain these valuable historic buildings.

Sensitive design of the masterplan has enabled the site to promote positive 'place marking', enabling a large proportion of the properties to front onto open green corridors bordered with mature trees. Connectivity to existing village amenities have been greatly improved as well as the site also including over 7 hectares of new public open space and recreational parkland. A key feature of the development has been to include a provision of much needed smaller homes for the area together with a variety of housing types to suit a wide range of housing requirements.

Share